PERT Reducer
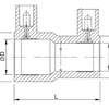
PERT Reducer fitting for connecting different pipe sizes in PE-RT piping systems.
PE-RT
Yellow
Applications
PERT Reducer fitting for connecting different pipe sizes in PE-RT piping systems.
| Dxd | Product Code | SP | Weight (gm) | D (mm) | L (mm) | FT | CT |
|---|---|---|---|---|---|---|---|
| 90x75 | R90X75PERTCREAMB | 14 | 463 | 113 | 130 | 140 | 15 |
| 110x75 | R110X75PERTCREAMB | 8 | 839 | 138 | 152 | 160 | 15 |
| 110x90 | R110X90PERTCREAMB | 8 | 870 | 138 | 152 | 160 | 15 |
| 125x90 | R125X90PERTCREAMB | 8 | 1100 | 155 | 167 | 200 | 15 |
| 125x110 | R125X110PERTCREAMB | 4 | 1137 | 155 | 167 | 200 | 15 |
Need help choosing the right product?
Talk to our engineering experts for product selection and technical support.
Contact Us